監理人必學:施工現場臨時用電詳解!
第一節、變壓器防護
變壓器防護材料采用圓竹和圓木(主竹桿、頂端手里橫桿、剪刀撐小頭直徑不小于8cm;輔助竹桿、水平連系桿小頭直徑不小于4cm),變壓器四周砌筑2m高M7.5水泥砂漿MU10灰砂磚180mm寬磚墻,外側抹20mm厚1:3水泥砂漿,圍墻上端0.2米高,下端0.3米高刷藍色色帶;居中位置金屬防護門,門框及骨架用25×50mm方鋼焊接制作,骨架內采用厚度1mm鋼板遺跡30×30鋼板網。刷騰越建筑藍油漆,上鎖。門上懸掛“當心觸電,禁止入內”安全警示牌。






說明:
1.現場可利用變壓器防護圍墻做安全宣傳文化墻。
2.變壓器防護材料采用圓竹和圓木(主竹桿、頂端手里橫桿、剪刀撐小頭直徑不小于8cm;輔助竹桿、水平連系桿小頭直徑不小于4cm),變壓器四周砌筑2m高M7.5水泥砂漿MU10灰砂磚180mm寬磚墻,外側抹20mm厚1:3水泥砂漿。在塔吊范圍內頂部應做雙層防護。
3.居中位置金屬防護門,門框及骨架用25×50mm方鋼焊接制作,骨架內采用厚度1mm鋼板遺跡30×30鋼板網。刷騰越建筑藍油漆,上鎖。門上懸掛“當心觸電,禁止攀爬”安全警示牌。
4.變壓器的防護應滿足當地主管部門的要求。當地風荷載較大時,防護設施必須能夠抵抗風力,必要時防護設施四周需要增設纜風繩。
5、搭設時應斷電,禁止帶電作業。
6、防護設施與外電線路之間的最小安全距離必須滿足下表要求:

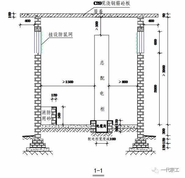
第二節、配電房
1、 配電房位置的選擇距變壓器越近越好。配電房墻體采用M7.5水泥砂漿MU10灰砂磚180mm寬磚墻砌筑,高度不小于3m,現澆鋼筋砼屋面板,內、外側抹20mm厚1:3水泥砂漿,外側刷白色涂料,上端0.2米高,下端0.3米高刷藍色色帶。配電房內電纜溝、消防砂池用M7.5水泥砂漿MU10灰砂磚120mm寬磚墻砌筑,外側、頂面抹20mm厚1:3水泥砂漿。配電房內懸掛操作規程牌,配電柜上貼電路系統圖。
2、在總配電箱處作工作接地并引出保護零線,接地裝置采用長2.5m的鋼管垂直打入地下。接地裝置的接地線不得小于兩根,經測量的接地線不得小于兩根,經測量接地電阻不大于4歐。對于塔吊、施工電梯、對焊機除做保護接零外,還做重復接地,另外各分配電箱也要求做重復接地,接地電阻都不大于10歐,以穩定整個系統零線電位。嚴禁將保護接零與工作接零混用,嚴禁一部分設備做保護接零,而一部分設備做工作接零。




說明:
1.配電房墻體采用M7.5水泥砂漿MU10灰砂磚砌筑,外墻抹灰并刷白色涂料。配電房內電纜溝、消防砂池用M7.5水泥砂漿MU10灰砂磚120mm寬磚墻砌筑,外側、頂面抹20mm厚1:3水泥砂漿。配電房內懸掛操作規程牌,配電柜上貼電路系統圖。
2.屋蓋樓板采用現澆,內配φ8@180雙層雙向拉通鋼筋,內外抹20mm厚1:3水泥砂漿。
3.配電室內設置消防砂箱一個、二氧化碳滅火器2 個、消防鏟兩把、消防桶兩個、分別設置正常照明和事故照明、地面滿鋪絕緣橡膠板。
4.配電室的建筑物和構筑物的耐火等級不得低于3級。
5.施工現場配電屏上裝設檢測儀表是為了能更好的監測供電系統的電能質量,電流狀況等,以便提供更好的供電。
●配電柜應裝設電源隔離開關及短路、過載、漏電保護電器。電源隔離開關分斷時應有明顯可見分斷點。配電柜裝設電源隔離開關及短路、過載、漏電保護電器的作用是為了切斷供電電源或發出報警信號。
●配電柜或配電線路停電維修時,應掛接地線,并應懸掛"禁止合閘、有人工作"停電標志牌。停送電必須由專人負責。懸掛標志牌可以提醒有關人員及時糾正將要進行的錯誤操作和做法,以防因誤操作而錯誤地向有人作業的電氣設備合閘送電和誤登帶電設備。對施工現場配電屏上的配電線路進行編號并表明用途標記,有利于配電線路與配電設備的操作、維修和管理,是防止發生誤操作的安全技術措施。
第三節、電線、電纜敷設
1、電線可以架空、橋架敷設,不可以埋地。
2、電纜可以選用架空、架橋、埋地敷設。
3、電纜線埋地時,溝槽的開挖寬度可按照施工工藝要求作適當調整。
4、不應將電纜掛設在腳手架之上,若必需掛設于腳手架上面,應有可靠的絕緣措施。
5、電纜通過樓層時應做好防護。
電纜埋地敷設


電線、電纜橋架敷設


說明:
1.電纜線埋地時,溝槽的開挖寬度可按照施工工藝要求作適當調整。
2.埋地電纜路徑應設方位標志。
3.電纜埋地時應套PVC管作防護,便于對電纜線回收及增加周圍次數。電線、電纜架設




說明:
1.架空線路必須有足夠的機械強度,截面積應符合使用要求,且絕緣銅線截面不小于10mm2,絕緣鋁線截面不小于16mm2。
2.電線桿檔距不得大于20m。
電線、電纜樓層地面敷設




說明:
電纜線沿地面敷設時應做硬防護,嚴禁沿地面明敷設。(本做法僅用于樓層內電纜、電線防護)
電線、電纜沿腳手架掛設




說明:
1.“S”鉤可根據現場自行選擇掛設在外側或內側,間距宜為每距一設。
2.電纜、電線應與絕緣瓷瓶或帶絕緣膠管的“S”鉤綁扎固定,綁扎材料應為絕緣材質。
第四節、外電防護
1、施工現場搭設作業棚、建造生活設施或堆放構件、架具,材料等不得在外電架空線路正下方。
2、在建工程( 含腳手架) 的周邊與外電架空線路的邊線之間必須保持安全操作距離;對達不到規定的最小距離時, 必須采取防護絕緣隔離保護措施,并懸掛醒目的警告標志,現場設置警示標志必須晝夜均醒目可見。
3、宜采用絕緣材料、嚴禁鋼竹、鋼木混用。

說明:
1.施工現場區內臨時用(不大于10kv)電線路架體與防護設施的距離不得小于1.0m。
2.防護設施的搭設高度應比需要防護的電線路最少高出1.0m,若架空敷設的電線在塔吊覆蓋范圍之內,要做防護棚。
3.架設安全防護設施宜通過采用木、竹或其他絕緣材料增設屏障、遮攔、圍欄、保護網等與外電線路實現強制性絕緣隔離,并須在隔離處懸掛醒目的警告標志牌。
4.在建工程不得在外電架空線路正下方施工、搭設作業棚、建造生活設施或堆放構件、架具、材料及其他雜物等。
5.在建工程(含腳手架)的周邊與外電架空線路的邊線之間的最小安全操作距離應符合下表規定。

注:上、下腳手架的斜道不宜設在有外電線路的一側,當因受現場作業條件限制達不到安全距離時,必須采取屏護措施,防止觸電事故發生。
6.施工現場的機動車道與外電架空線路交叉時,架空線路的最低點與路面的最小垂直距離應符合下表規定:
7、起重機嚴禁越過無防護設施的外電架空線路作業。在外電架空線路附近吊裝時,起重機的任何部位或被吊物邊緣在最大傾斜時與架空線路邊線的最小安全距離應符合右表規定。
8、施工現場開挖溝槽邊沿與外部埋地電纜溝槽邊緣之間的距離不得小于0.5m。



說明:
1.示意圖1架體材質為竹或圓木,適用于上部無起重設備跨越的情況。桿件間距應根據當地風荷載以及搭設高度計算確定,側面應采用鋼絲繩斜拉或桿件拋撐等固定方式。防護屏障可使用竹笆網或雙層荊笆。若外腳手架靠近外電線路時,應除了掛阻燃式密目安全網外,還應在腳手架外側全面綁扎一層竹巴片。
2.示意圖2架體材質為竹或圓木 ,適用于上部有起重設備跨越的情況。桿件間距應根據當地風荷載以及搭設高度計算確定,側面應采用鋼絲繩斜拉或桿件拋撐等固定方式。
3.本做法僅供參考,現場應根據當地政府或相關行政部門的要求,結合實際作適當調整。如防護設施無法實施時,應與有關部門協商,采取停電或改變線路位置的方法。
4.圖中L當為低壓線路時L=400,當為10KV以上時L=800。
5.在布置超重設備時應盡量避開外電線路。
6.桿件采用竹篾綁扎的方法固定。
第五節、配電柜(箱)
配電箱(柜)應采用冷軋鋼板或絕緣材料制作,總配電柜、分配電箱箱體厚度不小于1.5mm,開關箱箱體鋼板厚度不小于1.2mm。所有箱體內均貼電路系統接線圖,箱內應有分路標記、檢查記錄;箱體均要上鎖,箱體右下角表明電箱名稱、責任人、電話、編號,左邊居中位置粘貼閃電標志。固定式分配電箱必須搭設防護棚,本圖集推薦工具化的防護棚。

總配電柜系統圖

說明:
1.總配電箱應具備電源隔離、短路、過載及漏電保護功能,隔離開關應采用具有可見分斷點的開關。
2.總配電箱內應配置電流表、電壓表、電度表計量及其他儀表。
3.箱體應采用冷軋鋼板制作,箱體鋼板厚度不得小于1.5mm。
4.總配電箱內的漏電保護器可選用中靈敏度的延時型保護器漏電動作電流應大于30mA,動作時間應大于0.1s。但其二者之間的乘積不應大于30mA.s。
5.分別設置N線端子板和PE線端子板,進出線必須通過端子板連接。

分配電箱系統圖

分配電箱電器配置圖
說明:
1.分配電箱內設置總隔離開關、總斷路器、分隔離開關、分斷路器,每項回路應有用電標識,相線分色區分。
2.分配電箱內的漏電保護器,其漏電動作電流應小于總配電箱的漏電動作電流,而大于開關箱內的漏電動作電流但其二者之間的乘積不應大于30mA.s。
3.分配電箱應裝設總隔離開關,隔離開關應采用具有可見分斷點的開關。
4.分配電箱應采用冷軋鋼板制作,箱體鋼板厚度不得小于1.5mm。
5.分別設置N線端子板和PE線端子板進出線必須通過端子板連接。




說明:
分配電箱右下角應有名稱、編號、聯系電話、責任人,箱內應有分路標記、檢查記錄及系統接線圖。

說明:
1.開關箱內必須裝設隔離開關、斷路器、以及漏電保護器。當采用同時具有短路、過載、漏電保護功能的漏電斷路器時,可不設斷路器。
2.隔離開關應采用分斷時具有可見分斷點、能同時斷開電源所有極的隔離電器,并應設置于電源進線端。當斷路器具有可見分斷點時,可不設隔離開關。
3.開關箱中漏電保護器的額定動作電流應不大于30mA,額定漏電動作時間應不大于0.1s。在潮濕、坑洞內作業時,選擇的漏電保護器漏電動作電流應不大于15mA,額定漏電動作時間應小于0.1s,工作時有專人監護。
4.施工現場應根據大、中、小型機械選擇相應的開關箱。




說明:
開關箱右下角應有名稱、編號、聯系電話、責任人,箱內應有分路標記、檢查記錄及系統接線圖。
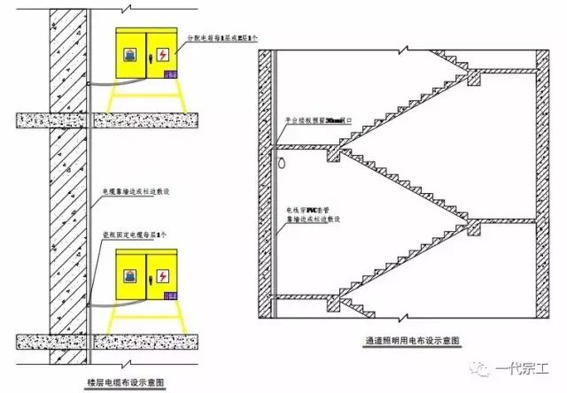
第六節、樓層用電布設

說明:
主線走向不能固定在外架上, 樓層內的電纜、電線必須采用瓷瓶架空;梯通道內的照明用電可以選用預埋PVC套管走線或直接利用水電安裝已完管線接線。
第七節、供電系統


說明:
1.建筑施工現場臨時用電工程專用的電源中性點直接接地的220/380V三相五線制低壓電力系統,必須符合下列規定:
(一)采用三級配電系統;
(二)采用TN-S接零保護系統;
(三)采用二級漏電保護系統。
2.在施工現場專用變壓器供電的TN-S接零保護系統中,電氣設備的金屬外殼必須與保護零線連接。保護零線除必須在配電室或總配電箱處做重復接地外,還必須在配電系統的中間處和末端處做重復接地;保護零線每一處重復接地裝置的接地電阻值不應大于10 ;垂直接地體宜采用角鋼、鋼管或光面圓鋼,不得采用螺紋鋼。
3.臨時用電系統應符合當地供電主管部門的要求。
第八節、接地與防雷TN-S接零保護系統



說明:
1.在施工現場專用變壓器的供電的TN-S 接零保護系統中,電氣設備的金屬外殼必須與保護零線連接。保護零線應由工作接地線、配電室(總配電箱) 電源側零線或總漏電保護器電源側零線處引出。
2.TN系統中的保護零線除必須在配電室或總配電箱處做重復接地外,還必須在配電線路的中間和末端處做重復接地。在TN系統中,保護零線每一處重復接地裝 臵的接地電阻值不應大于10Ω。在工作接地電阻值允許到10Ω的電力系統中,所有重復接地的等效電阻值不應大于10Ω。
3.每一接地裝置的接地線應當采用2 根及以上導體, 在不同點與接地體做電氣連接。
4.不得采用鋁導體作為接地體,垂直接地體宜采用圓管、角鋼或光面圓鋼,不得采用螺紋鋼。
電氣設備接地

說明:
1.當施工現場與外電線路共用同一供電系統時,電氣設備的接地及接零保護應與原系統保持一致。
2.做防雷接地機械上的電氣設備,所連接的PE 線必須同時做重復接地,接地電阻值應不大于10Ω。

